VGL
Transformation d’un studio en T2
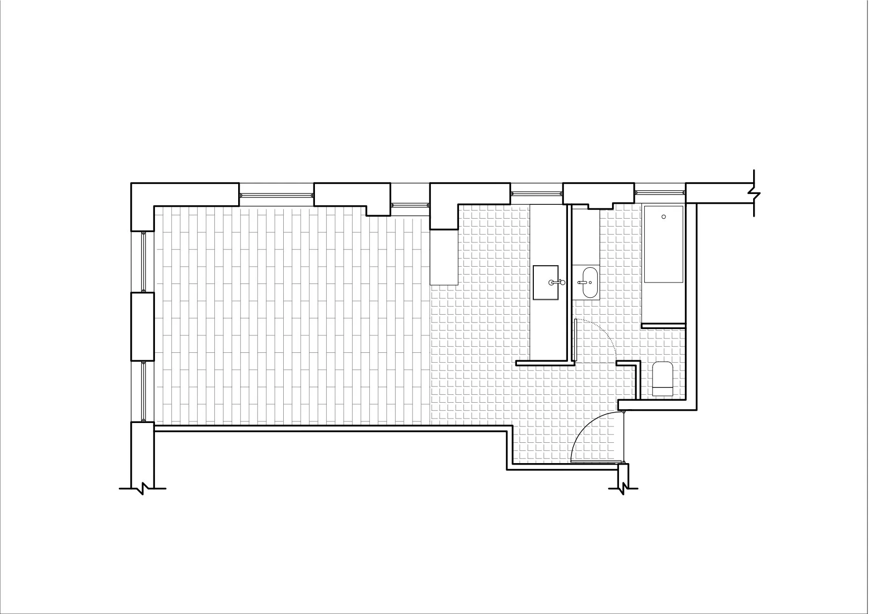
En attendant l’arrivée de leur premier enfant, un jeune couple de trentenaires rêvait de s’installer à Annecy. Ils ont craqué pour un studio au cœur de la ville historique… mais mal agencé et sous‑utilisé. Grâce à un travail de conception et de suivi de chantier sur quelques mois, j’ai transformé ce petit espace en leur tout premier chez‑eux, à leur image : minimaliste, lumineux, fonctionnel et parfaitement optimisé.
AVANT
APRÈS
“Je ne pensais pas qu’il serait possible d’avoir une vraie chambre dans ce studio. Maxime a immédiatement trouvé la solution, ce qui m’a permis d’acheter sereinement et de voir le chantier se dérouler sans encombre.”
— Cliente VGL















